| Objekt-ID: | 035.015.008 | | Straße: | Wackenroderweg 15 Bei Google Maps zeigen | | PLZ Ort: | 31303 Burgdorf | | Beschreibung: | Meinen Sie nicht auch ? - Die Bilder unseres Reihenmittelhauses sprechen Bände, hier möchte man zu Hause sein!
Das Objekt befindet sich in einer sehr attraktiven und ruhigen Cityrandlage. Ein tolles geräumiges Wohnzimmer lässt Sie die "Einfamilienhauswelt" pur erleben. Ob Sie die Sportschau im Fernsehen oder Verdi aus der HiFi-Anlage geniessen - tun Sie es hier ungestört (...und gern auch ein klein wenig lauter). Der kleine Garten lädt zum Grillen und Ausruhen ein!
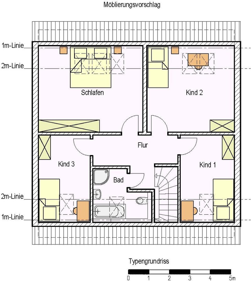
Neben dem ca. 47 qm (!) großen Wohnzimmer enthält das Mietobjekt fünf große Schlaf- bzw. Kinderzimmer. Hier hat die ganze Familie Platz. Alternativ richten sich noch ein Arbeitszimmer ein, das Kinderzimmer im Erdgeschoß ist hierfür ideal gelegen. Das gesamte Haus wurde im Frühjahr 2020 renoviert und in einem bezugsfertigen Zustand gebracht. Die Bäder waren bereits modern gefliest und mit einer attraktiven Sanitärausstattung versehen. Optik und Funktion der Sanitärausstattung wird geprüft und bei Bedarf Erneuerungen durchgeführt. Neben der Badewanne im Bad sind auch zwei Duschwannen mit Duschkabinenaufsätzen vorhanden. Die zeitgleiche "Morgentoilette" mit mehreren Personen ist dann kein Problem mehr. Auch die Bodenbeläge werden geprüft und ggf. erneuert. Das Haus ist voll unterkellert und bietet ausreichend Platz für Hobby´s, Einlagerungen und im Waschkeller für Ihr Waschgerät. | | Ausstattung: | fachgerecht verarbeitete Raufasertapete, versehen mit weißer Binderfarbe an Decken und Wänden, auf Wunsch und gegen eine Aufwandsentschädigung ist eine farbliche Gestaltung der Wandflächen möglich.
Bad/Gäste-WC sind attraktiv hell gefliest,
Die Elektro-Ausstattung ist üppig, neben einer Vielzahl von Steckdosen sind in allen Wohn- u. Schlafräumen TV- und Telefonanschlüsse vorhanden.
Glasfaseranschluss vorhanden
Fenster haben Isolierverglasung, Bodenbeläge Laminat und Fliesenböden, in allen Räumen im EG und DG.
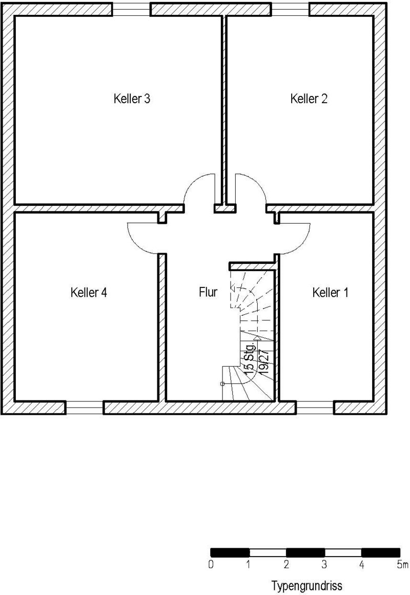
3 Kellerräume zuzügl. Waschkellerraum, Bodenraum,
Garten mit angelegter Terrasse, pflegeleicht gestaltet. | | Lage: | In der früheren Kreisstadt Burgdorf leben ca. 30.000 Einwohner. Burgdorf liegt zwischen Hannover, Celle und Peine und ist von allen drei Städten jeweils etwa 25 km entfernt. Bekannt ist Burgdorf für Spargelanbau und Pferdezucht. In diesem idyllischen Städtchen liegt unsere, rund um den alten Wasserturm, gelegene Wohnanlage, die durch Ihre zentrale aber dennoch ruhige Lage besticht. Fast sämtliche Einkaufs- und Freizeitmöglichkeiten lassen sich fußläufig erreichen. Beispielsweise befinden sich verschiedene Lebensmittelgeschäfte, Supermärkte und Bäcker nur wenige Gehminuten entfernt. In Ihrer Freizeit können Sie einen Abstecher zu den Sportanlagen und dem Freibad wagen oder Sie besuchen die Innenstadt mit ihren Eisdielen, Cafés, Bars und einem Kino. Für welches Freizeitangebot Sie sich auch entscheiden, sie sind alle fußläufig innerhalb von 5 Minuten erreichbar. Auch für Ihre medizinische Versorgung ist in der näheren Umgebung gesorgt. Apotheken und Allgemeinmediziner sind in unmittelbarer Nähe zur Wohnanlage vorhanden. Der ca. 800m entfernte Bahnhof und die in 10 Minuten erreichbare Autobahnanschlussstelle an die A37 bringen Sie schnell Richtung Hannover oder Celle. | | Kaltmiete: | 1.648,00 EUR | | Nebenkosten: | 169,00 EUR | | Heizkosten: | 259,00 EUR | | Wohnfläche: | 150,00 qm | | Zimmer: | 6 | | Haustyp: | Einfamilienhaus | | Etagenzahl: | 2 (inkl. EG) | | Schlafzimmer: | 5 | | Badezimmer: | 2 | | Heizungsart: | Zentralheizung | | Befeuerungsart: | Gas | | Energieausweistyp: | Energieverbrauchskennwert | | Kennwert: | 179 kWh/(m²*a) | | Objektzustand: | Nach Vereinbarung | | Baujahr: | 1980 | | Verfügbar ab: | 01.05.2026 | | Mietsicherheit: | 4944 EUR | | Sonstiges: | Das Haus wird unmöbliert vermietet, die Übernahme von Ausstattungen, wie z. B. der Einbauküche des Vormieters, ist möglich. Die Kaufpreisverhandlungen führen die beiden Mieterparteien durch. | | Links: | Webseite des Anbieters | | Kontakt: | Herr Torsten Strempel +49 5175 953031 auch Sa./So. vermietung@gewo.org Per Kontaktformular
Angebot ausdrucken |
 EBK-Übernahme möglich!
 Bad mit Dusche und Wanne!
 aus alt...
 Arbeits- oder Kinderzimmer im EG!
 Waschkeller mit Waschgerätesockel!
 ...aus allen Perspektiven!
 Grundriss OG
| |  Am Cityrand Burgdorfs!
 heller Flur!
 großzügiges Wohnen!
 wie richten Sie es ein?
 Gäste-WC mit Dusche!
 Elternschlafzimmer
 ...wurde neu!
 renovierte Kellerräume!
 Gepflegte Gartenanlage...
 Grundriss EG
 Grundriss KG
|